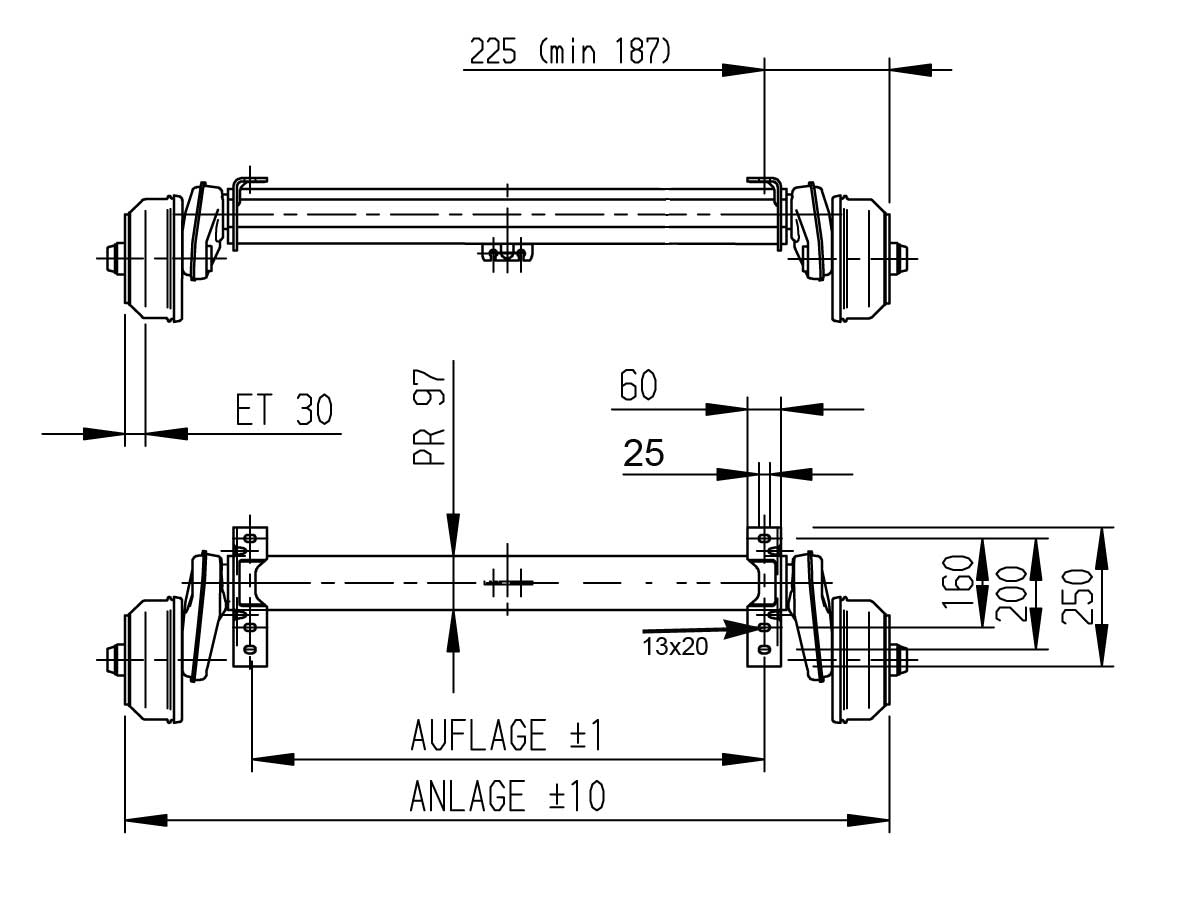
Aksel B1600-3 A850 C1300, 1500Kg, 2051Ab 112x5 ET30
3-20021151
med kuglebolte og bremsekabler
- A-mål (Auflage)/B-mål (mm)
- 850
- C-mål (Anlage) (mm)
- 1300
- Type nr.
- B1600-3
- Bremsestørrelse
- 200x50mm
- PCD/Boltcirkel (mm)
- 112x5
- Bremse type nr.
- 2051
- Totalvægt enkelaksel
- 1500Kg
- Totalvægt tandem
- 3000Kg
- Type nr.
- B1600-3
- Fabrikat/Passer til
- AL-KO
- Original nr.
- 20021151
- Produkt type
- Aksel med bremser
- Weight
- 49